Tennessee
Hrubá stavba obsahuje: dřevěná konstrukce (1NP), dle projektové dokumentace, ze smrkových klád s otvory na okna a dveře a přípravou na elektrorozvody a průchodky / stropní dřevěný překlad / štítová konstrukce a vnější štítový záklop z nesámovaných prken / trámová konstrukce podkrovní nadezdívky / trámový nehoblovaný krov (hoblovány pouze pohledové části krovu) / ochranný nástřik proti škůdcům / v podélných drážkách (1NP) je tepelný izolant z ovčího rouna nebo konopí / režijní náklady na činnosti v místě stavby (ubytování, strava, atd..)
V základu stavba na klíč obsahuje veškerý objem díla v rámci hrubé stavby a ostatní dodavatelské činnosti potřebné k provozuschopnosti srubu či roubenky jako jsou například : střecha / základní a závěrečné povrchové nátěry / komín / okna / krycí lišty / parapety / dveře venkovní a vnitřní / vodoinstalace / kanalizace / elektroinstalace / podlahy / příčky / dlažby / obklady / zařizovací předměty / přípojky / a jiné dle projektové dokumentace a požadavků zákazníka.
Rodinný srubový podkrovní dům s galerií do tvaru "T" s velkou garáží.
1.N.P. - předsíň, WC+koupelna, pokoj pro hosty, obývák s galerií, kuchyň, jídelní kout, garáž, schodiště.
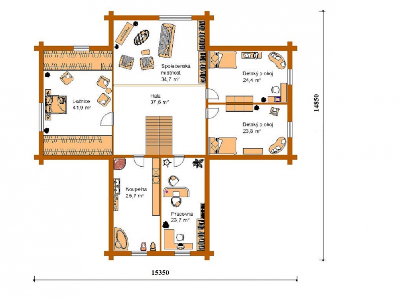
2.N.P. - galerie s pohledem na obývák, dětský pokoj I, dětský pokoj II, ložnice, pracovna, WC+koupelna.
![[srub-te-ma-foto-2.jpeg]](/data/gallery/catalog-item-1285/tb/srub-te-ma-foto-2.jpeg)
![[srub-te-ma-foto-3.jpeg]](/data/gallery/catalog-item-1285/tb/srub-te-ma-foto-3.jpeg)
![[srub-te-ma-foto-5.jpeg]](/data/gallery/catalog-item-1285/tb/srub-te-ma-foto-5.jpeg)
![[srub-te-ma-foto-6.jpeg]](/data/gallery/catalog-item-1285/tb/srub-te-ma-foto-6.jpeg)
![[srub-te-ma-foto-7.jpeg]](/data/gallery/catalog-item-1285/tb/srub-te-ma-foto-7.jpeg)
![[srub-te-ma-foto-8.jpeg]](/data/gallery/catalog-item-1285/tb/srub-te-ma-foto-8.jpeg)
![[srub-te-ma-foto-9.jpeg]](/data/gallery/catalog-item-1285/tb/srub-te-ma-foto-9.jpeg)
![[srub-te-ma-foto-91.jpeg]](/data/gallery/catalog-item-1285/tb/srub-te-ma-foto-91.jpeg)
![[srub-te-ma-pudorys-1np.jpeg]](/data/gallery/catalog-item-1285/tb/srub-te-ma-pudorys-1np.jpeg)
![[srub-te-ma-pudorys-2np.jpeg]](/data/gallery/catalog-item-1285/tb/srub-te-ma-pudorys-2np.jpeg)